Etudes et Projets
Devis Et Plans Gratuits
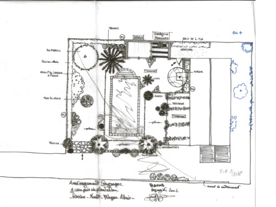
Étude personnalisée par notre architecte paysagiste avec plan et dessins (vue en coupe) et collaboration avec le client pour aménager le jardin selon ses goûts et ses désirs.
La majorité de nos clients sont des particuliers, mais nous sommes à même de répondre aux demandes des collectivités, des lotissements, des Mairies (nous sommes également producteurs d’arbres et arbustes d’ornement, pouvant faire des tarifs professionnels par le biais de notre Pépinière).
Processus
- Premier contact sur le terrain
- Élaboration du premier plan et visite à la jardinerie, avec une première sélection des plantes et des matériaux
- Devis officiel très détaillé remis en mains propres ou par mail.












